Capannone in vendita

Volpiano, Via Torino
€ 330.000
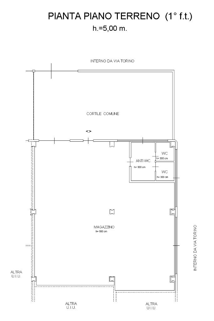
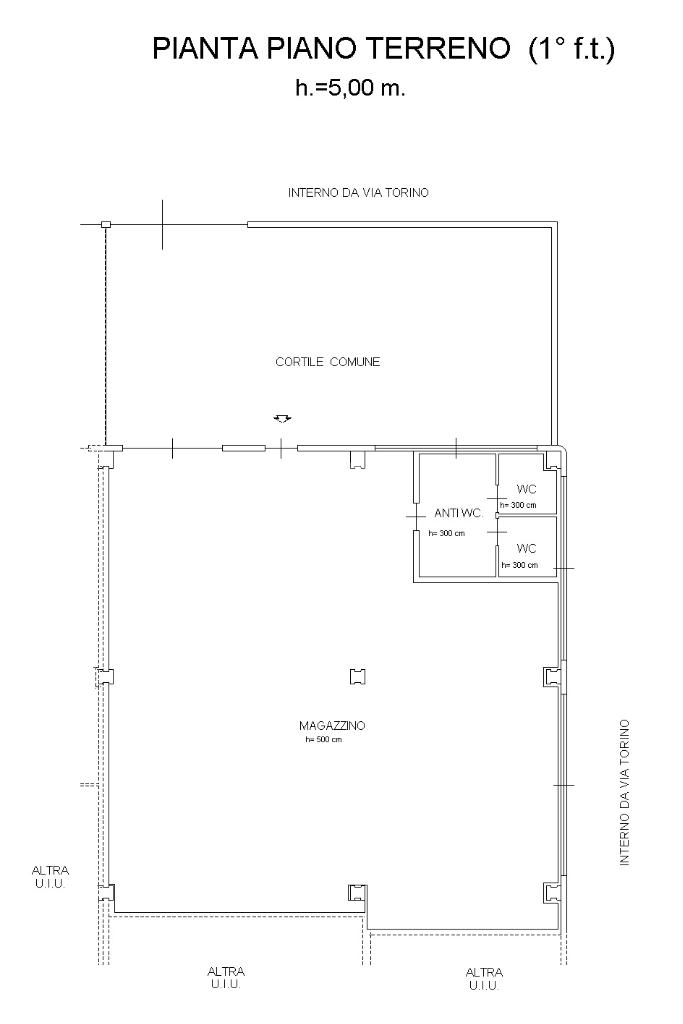
313 Mq 313 Mq
2 bagni 2 bagni

Capannone in vendita

Volpiano, Via Torino

Descrizione annuncio

Nel comune di Volpiano, proponiamo in vendita un capannone di 313 mq situato al piano terra. Costruito nel 2010, l'immobile offre spazi ampi e ben distribuiti, ideali per diverse attività produttive o di stoccaggio. La struttura moderna garantisce funzionalità e praticità, con un accesso agevole per mezzi di trasporto e operazioni di carico e scarico. La posizione strategica nel contesto industriale di Volpiano assicura un facile collegamento con le principali vie di comunicazione, rendendo questo capannone una soluzione interessante per chi cerca un'opportunità di investimento o un nuovo spazio per la propria attività. La costruzione recente assicura buone condizioni strutturali e impiantistiche, pronte per essere personalizzate secondo le esigenze specifiche.

Mostra tutto

Nelle vicinanze

Trasporto pubblico Trasporto pubblico
Volpiano
Volpiano
2,1 Km
Volpiano (v. Torino 81-Lago Azzurro)
Volpiano (v. Torino 81-Lago Azzurro)
270 m
Volpiano (v. Torino 32)
Volpiano (v. Torino 32)
280 m
Scuole Scuole
Scuola secondaria di primo grado "Dante Alighieri"
1,9 Km
Scuola Primaria "Guglielmo da Volpiano"
2,0 Km
Scuola Primaria "Gigi Ghirotti"
2,5 Km
Scuola dell'Infanzia "Acquerello"
2,5 Km
Farmacia Farmacia
Farmacia
1,3 Km
Farmacia Comunale 21
2,5 Km
Supermercati Supermercati
Lidl
1,4 Km
Ristoranti Ristoranti
Ristorante Lago Azzurro
1,8 Km
Mostra tutto

Caratteristiche

Rif.:
61045439
Piano:
Terra
Posti auto:
2
Condizionamento:
Assente
Ascensore:
No
Riscaldamento:
Autonomo
Mostra tutto
Prezzo Prezzo
€ 330.000
Rata mutuo Rata mutuo
€ 1.521 / mese
Proponi il tuo prezzoProponi il tuo prezzo

Classe Energetica

D
D
D
D
D
D
D
D
D
Anno di costruzione:
2005
Riscaldamento:
Autonomo
Tipo impianto:
A pavimento
Tipo alimentazione:
Metano

Ti interessa visionare l'immobile?

Fissa un appuntamento  Fissa un appuntamento

Richiedi informazioni

* Questi campi sono obbligatori

Calcola il tuo mutuo

Semplice e senza impegno
Anticipo

( % )
Mutuo

( % )

pochi semplici passi

inserisci i tuoi dati
Questionario completato
Grazie per aver richiesto un appuntamento senza impegno con un nostro Consulente del Credito e Assicurativo.

Hai inserito correttamente tutti i dati necessari e a breve riceverai una e-mail con un link da convalidare per inviare i tuoi dati.
Affiliato
Immobiliare Impresa Quadrifoglio Sas
Via Milano, 1/D 10036 Settimo Torinese (TO)

Il nostro staff


  • Diego Bongiovanni
    Responsabile

  • Diego Buscieti
    Affiliato

  • Tommaso Ricucci
    Affiliato
Via Milano, 1/D 10036 Settimo Torinese (TO)
Zona: Leinì-Settimo Torinese-San Mauro Torinese-Volpiano-Brandizzo-Gassino-Castiglione-San Raffaele Cimena
Mostra su mappa
Orari: DA LUNEDI A VENERDI 8.30 - 12.30 e 14.30 -19.30 SABATO 8.30 - 12.30
Affiliato
Immobiliare Impresa Quadrifoglio Sas
Via Milano, 1/D 10036 Settimo Torinese (TO)

2025 Tecnocasa Franchising S.p.A. - P. IVA 08365160152 - Via Monte Bianco 60/A 20089 Rozzano (MI). Ogni agenzia ha un proprio titolare ed è autonoma. Privacy policy | Policy utilizzo | Cookie policy