Capannone in vendita

Volpiano, Via Pinetti
€ 640.000
4 locali 4 locali
3000 Mq 3000 Mq
2 bagni 2 bagni

Capannone in vendita

Volpiano, Via Pinetti

Descrizione annuncio

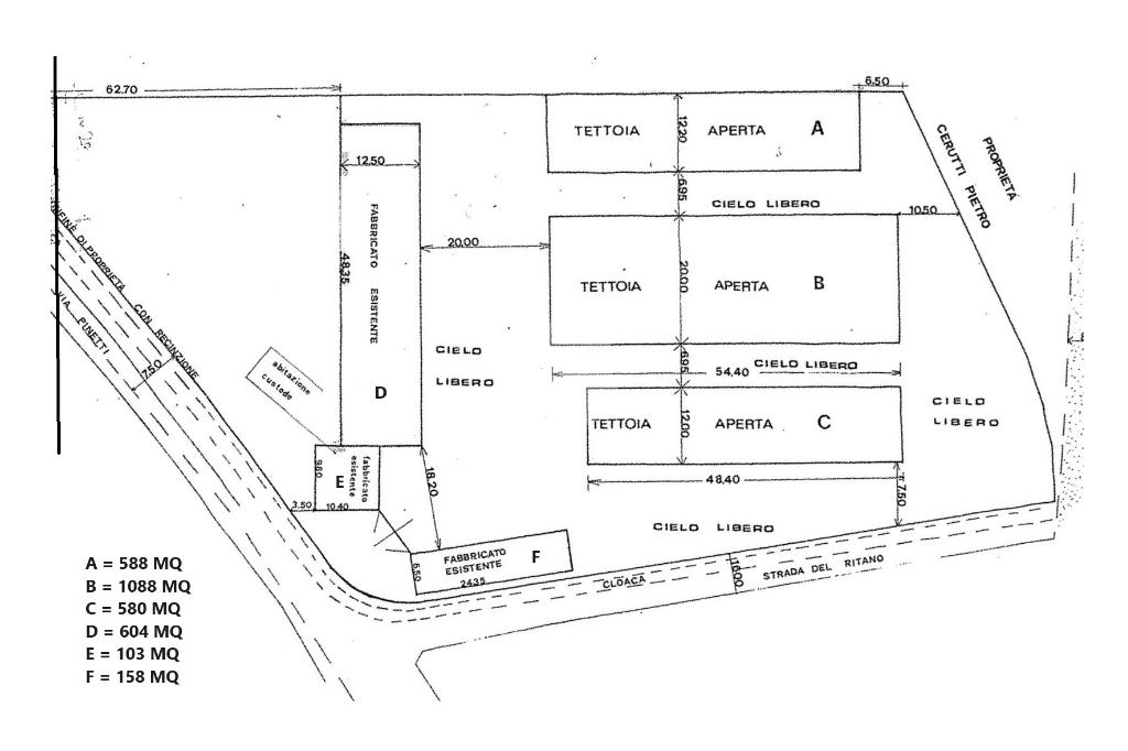
All'interno di un lotto di 9.000 metri quadri
sono presenti tre tettoie libere su 4 lati con altezza interna 6 metri. Due tettoie sono ampie 580 mq e la terza è di 1100 mq, per complessivi 2250 mq. Nel complesso è presente una casa del custode, ad uso abitativo di 4 vani di circa 100 mq e altri due fabbricati, un magazzino di 158 mq e una tettoia chiusa su tre lati di 600 mq. Il tutto è accatastato come unico complesso industriale. E' inoltre presente un ampia area adiacente la proprietà lungo lungo la nuova circonvallazione che collega San Benigno e Volpiano all'uscita dell'autostrada Torino-Aosta, da adibire a zona espositiva o parcheggi.

Mostra tutto

Nelle vicinanze

Trasporto pubblico Trasporto pubblico
Volpiano
Volpiano
1,1 Km
S. Benigno Canavese
S. Benigno Canavese
1,2 Km
Volpiano (S.Michele)
Volpiano (S.Michele)
830 m
Volpiano (Stazione)
Volpiano (Stazione)
1,0 Km
Scuole Scuole
Scuola Primaria "Gigi Ghirotti"
1,1 Km
Scuola dell'Infanzia "Acquerello"
1,1 Km
Scuola Primaria "Guglielmo da Volpiano"
1,1 Km
scuola materna Teresa Belloch
1,5 Km
Scuola secondaria di primo grado "Dante Alighieri"
1,7 Km
Farmacia Farmacia
Farmacia Comunale 21
800 m
Farmacia
1,0 Km
Supermercati Supermercati
Conad
2,2 Km
Lidl
2,4 Km
Negozi Negozi
pizza Planet
1,5 Km
Bar Bar
Bar
1,8 Km
Ristoranti Ristoranti
Il Mandorlo
1,6 Km
Mostra tutto

Caratteristiche

Rif.:
60835660
Piano:
Terra
Condizionamento:
Assente
Ascensore:
No
Riscaldamento:
Autonomo
Giardino:
Privato
Mostra tutto
Prezzo Prezzo
€ 640.000
Rata mutuo Rata mutuo
€ 2.958 / mese
Proponi il tuo prezzoProponi il tuo prezzo

Classe Energetica

Questo immobile è esente da classe energetica
Anno di costruzione:
1970
Riscaldamento:
Autonomo
Tipo impianto:
A radiatori
Tipo alimentazione:
Metano

Ti interessa visionare l'immobile?

Fissa un appuntamento  Fissa un appuntamento

Richiedi informazioni

* Questi campi sono obbligatori

Calcola il tuo mutuo

Semplice e senza impegno
Anticipo

( % )
Mutuo

( % )

pochi semplici passi

inserisci i tuoi dati
Questionario completato
Grazie per aver richiesto un appuntamento senza impegno con un nostro Consulente del Credito e Assicurativo.

Hai inserito correttamente tutti i dati necessari e a breve riceverai una e-mail con un link da convalidare per inviare i tuoi dati.
Affiliato
Immobiliare Impresa Quadrifoglio Sas
Via Milano, 1/D 10036 Settimo Torinese (TO)

Il nostro staff


  • Diego Bongiovanni
    Responsabile

  • Diego Buscieti
    Affiliato

  • Tommaso Ricucci
    Affiliato
Via Milano, 1/D 10036 Settimo Torinese (TO)
Zona: Leinì-Settimo Torinese-San Mauro Torinese-Volpiano-Brandizzo-Gassino-Castiglione-San Raffaele Cimena
Mostra su mappa
Orari: DA LUNEDI A VENERDI 8.30 - 12.30 e 14.30 -19.30 SABATO 8.30 - 12.30
Affiliato
Immobiliare Impresa Quadrifoglio Sas
Via Milano, 1/D 10036 Settimo Torinese (TO)

2025 Tecnocasa Franchising S.p.A. - P. IVA 08365160152 - Via Monte Bianco 60/A 20089 Rozzano (MI). Ogni agenzia ha un proprio titolare ed è autonoma. Privacy policy | Policy utilizzo | Cookie policy